Planimetrie
Informazioni
  • Superficie180mq
  • N. locali> 4
  • Bagni3
  • Camere3
  • Box1
  • Posto auto1 (per smart, microcar, moto o bici)
  • Età1930
  • Piano0+1+2+3
  • AceF kWh/m2 243,38
  • PaeseCasargo
  • Prezzo€ 60.000
  • Riferimentocasargo 132
Scheda tecnica
  • Balcone
  • Canna fumaria
  • Passaggio automobilistico
  • Passaggio pedonale
  • Doppio ingresso

Nel caratteristico centro storico di Indovero, frazione del comune di Casargo, proponiamo in vendita porzione di casa indipendente terra-cielo disposta su più livelli, con balconi panoramici e vista sulla valle.

La proprietà si trova in un contesto tranquillo e autentico, tipico dei borghi di montagna, ideale per chi desidera una seconda casa immersa nella natura o un rifugio per trascorrere momenti di relax lontano dalla città.

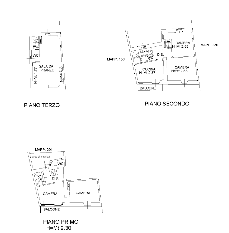
L’immobile è così composto:

*Piano terra

-box / autorimessa (adatto a Smart, microcar, moto o biciclette, a causa delle tipiche strade strette del centro storico)

*Piano primo
-soggiorno con cucina a vista
-una camera
-disimpegno
-bagno
-balcone panoramico

*Piano secondo
-cucina
-due camere
-disimpegno
-bagno
-balcone con vista aperta sulla valle

*Piano terzo
-caratteristica mansarda con ampia sala da pranzo
-bagno

La casa dispone di doppio ingresso, caratteristica che offre maggiore praticità e la possibilità di una diversa organizzazione degli spazi.
L’immobile conserva il fascino delle tipiche case di montagna e offre spazi ideali per accogliere famiglia e amici. I balconi panoramici permettono di godere di una splendida vista sulla valle e sul paesaggio circostante.

È presente la linea del metano nelle immediate vicinanze dell’abitazione, con possibilità di eventuale allaccio alla rete gas.

Grazie alla sua disposizione e al numero di locali, la casa si presta perfettamente sia come seconda casa in montagna, sia come investimento per affitti turistici.

*Caratteristiche principali

✔ Porzione di casa indipendente
✔ Box privato (ideale per Smart, moto o biciclette)
✔ Mansarda caratteristica
✔ Balconi con vista sulla valle
✔ 3 camere
✔ 3 bagni
✔ Linea metano disponibile nelle vicinanze
✔ Posizione tranquilla nel centro storico

EURO 60.000 DA VEDERE!!

Maggiori informazioni

Ho letto ed accetto l'Informativa sulla Privacy.